


Aspen Real Estate Market Last Week’s Sales: April 5 – April 12, 26 – Week 15
Closed (9): MLS#s: 189105, 189497, 188924, 189967, 191407, 189085, 191126 191763, 192370. This link is valid until 5/12/2026.
Under Contract/Pending (6): MLS#s: 186369, 188788, 191067, 188324, 192369, 192174. This link is valid until 5/12/2026.
Under Contract (Over $3M, Aspen): 186369, 188788. This link is valid until 5/12/2026.
ESTIN REPORT
My H2 & Year in Review 2025 report was released online in early April. Also posted was my Q1 & Mar 2026 Market Snapshot. An Aspen Times article on 4/08/26 highlighted both reports. For long term trends on sales by propety types, see Aspen Snowmass Real Estate Market Historic Quarterly Charts Q1.2014 – Q4.2025. The H1 2025 report – a 32-page print edition – is available outside Sotheby’s offices at 300 S Spring St #100 (my office – opposite the Aspen Art Museum), 415 E. Hyman Ave in the Hyman Mall, in racks around town and at the Pitkin County/ASE airport luggage area magazine kiosk.
SNOWMASS BASE VILLAGE: NEWER CONDO SALES (BUILT BETWEEN 2018-2025)
Scroll down page after the Aspen sales.
________________
SOLD PROPERTIES LAST WEEK – April 5 – April 12, 26
MLS # 189105 – Red Mountain Ranch, Red Mountain, 323 E Reds Road, Aspen; Sold Price: $25M/$5,097 sq ft Furn. More details below photos.
MLS # 189105 –Red Mountain Ranch, Red Mountain, 323 E Reds Road, Aspen; Sold Price: $25M/$5,097 sq ft Furn. Ask Price: $28.9M (Original Price: $28.9M and on the market since 07/08/2025). This is a 1975 built/2025 remodeled, 5 bedroom 5 bath, 1 half-bath, 4,904 sq ft single-family home with 2 car garage on a 31,926 sq ft lot, or 0.73 acres. Tim’s comments: Luxury remodeled Aspen home on a ¾-acre lot in the private, exclusive Red Mountain Ranch neighborhood – past homesite locations of two of Aspen’s most celebrated locals, Fritz Benedict and Herbert Bayer. The home is nestled in a grove of mature aspen groves with frontal and filtered Aspen Mountain views. The aspen trees relieve the home from the relentless south facing sunlight common on Red Mountain. The 4,900 sq ft home includes five en-suite bedrooms, two living areas, and three outdoor terraces designed for indoor-outdoor living. 2024 Taxes: $26,111; HOA Dues: $2,300. Under Contract Date: 01/23/2026; Sold Date: 04/06/2026. (Photos courtesy of Compass Aspen)
No MLS – Off Market: 1460 Red Butte Dr, Aspen; Sold Price: $24M/$5,728 sq ft. More details below photos.
No MLS – Off Market: 1460 Red Butte Dr, Aspen; Sold Price: $24M/$5,728 sq ft. Ask Price: $24M. This is a 2015 built, 4 bedroom 5 bath, 4,190 sq ft single-family home on a 30,492 sq ft lot. (Photo courtesy of Pitkin County Assessor)
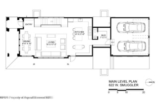
MLS # 189497 – West End, 502 N 6th Street, Aspen; Sold Price: $19M/$4,510 sq ft Unfurn. More details below photos.
MLS # 189497 – West End, 502 N 6th Street, Aspen; Sold Price: $19M/$4,510 sq ft Unfurn. Ask Price: $17.99M (Original Price: $21.5M and on the market since 07/29/2025). This is a 2025 built, 5 bedroom 5 bath, 1 half-bath, 4,212 sq ft single-family home with 2 car garage on a 4,500 sq ft lot, or 0.1 acres. Tim’s comments: Sold together with 622 W Smuggler (see below). Buyer paid $19.0M + $1.7M = $20.7M for both properties. New home on a corner lot, corner of W Smuggler/N. 6th St in Aspen’s West End with strong south and west exposure for all-day light. The location is conveniently walkable to the Aspen Institute/Music Festival and to downtown. It is two blocks to N. 4th St where the Crosstown Bus Shuttle runs to either location on the 1/2 hr during the winter and summer seasons. Features five en-suite bedrooms, two living areas, open-concept layout, media room, and a top-floor primary suite with private deck. The property was purchased with the adjacent vacant lot at 622 W Smuggler to create a multi-property compound. 2020 Taxes: $14,700. Under Contract Date: 02/18/2026; Sold Date: 04/06/2026. (Photos courtesy of Christie’s International Real Estate Aspen Snowmass)
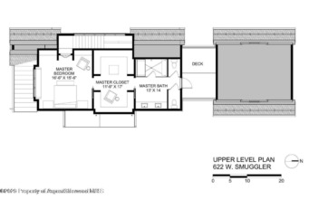
MLS # 189967 – West End, 622 W Smuggler Street, Aspen; Vacant land / lot for sale, Sold Price: $1.7M. Sold Date: 04/06/2026. More details below photos.
MLS # 189967 – West End, 622 W Smuggler Street, Aspen; Vacant land / lot for sale, Sold Price: $1.7M. Sold Date: 04/06/2026. Ask Price: $9.5M (Original Price: $10.5 and on the market since 09/02/2025). Tim’s comments: Sold together with 502 N 6th Street. Buyer paid $19.0M + $1.7M = $20.7M for both properties. This is an adjacent vacant lot with approved building permit and completed foundation, reducing both timeline and development costs. Plans available for a new residence with open living spaces. Opportunity to build immediately without going through the standard approval process. 2024 Taxes: $ 17.581. Under Contract Date: 02/18/2026, Sold Date: 04/06/2026. (Photos courtesy of Christie’s International Real Estate Aspen Snowmass)
MLS # 188924 – Cottonwood Condos, Central Core, 124 W Hyman Avenue 3B, Aspen; Sold Price: $3.375M/$2,743 sq ft Furn. More details below photos.
MLS # 188924 – Cottonwood, Central Core, 124 W Hyman Avenue 3B, Aspen; Sold Price: $3.375M/$2,743 sq ft Furn. Ask Price: $3.65M (Original Price: $3.75M and on the market since 06/25/2025). This is a 1969 built/2000 remodeled, 3 bedroom 3 bath, 1,230 sq ft condo. Tim’s comments: Top-floor 3-bedroom, 3-bath condo within walking distance to Aspen Mountain, dining, and shopping. Light-filled unit with skylight and views of Aspen Mtn on the front side (south) and Red Mountain on the back side (north). Includes in-unit laundry, ski locker, off-street parking, and low HOA. Short-term rentals permitted with proper permits. Offered furnished and move-in ready. 2024 Taxes: $7,526; HOA Dues: $16,210. Under Contract Date: 03/04/2026; Sold Date: 04/08/2026. (Photos courtesy of Aspen Snowmass International Realty)
MLS # 191407 – Townsite of Aspen, Central Core, Aspen; Transferrable Develooment Right (TDR) Sold Price: $700,000. Sold Date: 04/10/2026. More details below photos.
MLS # 191407 – (1) Pitkin County TDR (allowing for an additional 2500 Square Feet buildable right), Sold Price: $700,000. Sold Date: 04/10/2026. Ask Price: $760,000 (Original Price: $775,000 and on the market since 01/20/2026). Tim’s comments: This is a Transferable Development Right (TDR) allowing up to 2,500 square feet of additional buildable area within Pitkin County. 2026. Under Contract Date: 04/03/2026, Sold Date: 04/10/2026. (Photos courtesy of AspenSnowmassSothebys)
MLS # 189085 – Wood Run Subdivision, Snowmass Village, 473 Creek Lane, Snowmass Village, Sold Price: $12M/$2,147 sq ft Partially Furn. More details below photos.
MLS # 189085 – Wood Run, Snowmass Village, 473 Creek Lane, Snowmass Village, Sold Price: $12M/$2,147 sq ft Partially Furn. Ask Price: $13.7M (Original Price: $14.75M and on the market since 07/07/2025). This is a 1978 built, 6 bedroom 7 bath, 5,588 sq ft single-family home with 2 car garage on a 25,733 sq ft lot, or 0.59 acres. Tim’s comments: Ski-in/ski-out property on upper Fanny Hill in the Woodrun neighborhood, directly above Snowmass Village Mall with access to Coney Glade Lift. Over half an acre with private pond and mature trees. Existing 5,000+ sq ft home offers redevelopment potential or opportunity for a custom build. Wood Run is the most ski-accessible of Snowmass’s neighborhoods and one of the most sought after along with Ridge Run. They were the initial slope-side neighborhoods on the Snowmass ski mountain itself. About 70% of SMV residential property is ski accessible…These neighborhoods are the best. 2024 Taxes: $22,484; HOA Dues: $200. Under Contract Date: 10/17/2025; Sold Date: 04/07/2026. (Photos courtesy of Aspen Snowmass Sotheby’s International Realty-Snowmass Village)
MLS # 191126 – Shield O Mesa, Old Snowmass, 800 Chateau Way (on 288 acres), Snowmass, CO; Sold Price: $8.89M/$983 sq ft Furn. More details below photos.
MLS # 191126 – Shield O Mesa, Old Snowmass, 800 Chateau Way, Snowmass; Sold Price: $8.89M/$983 sq ft Furn. Ask Price: $10.75M (Original Price: $10.75M and on the market since 12/18/2025). This is a 1997 built, 5 bedroom 7 bath, 1 half-bath, 9,037 sq ft single-family home with 3 car garage on a 12,327,480 sq ft lot, or 288 acres. Tim’s comments: 288-acre estate with 360-degree views of Mount Sopris and Snowmass Ski Area. With stunning high mountain views and much sought-out privacy. Includes a 10,156 sq ft lodge-style home with five bedrooms and 7.5 baths, designed by Robert A.M. Stern Architects. Two additional 86-acre parcels included, allowing for expanded compound potential. 2024 Taxes: $32,000. Under Contract Date: 01/19/2026; Sold Date: 04/08/2026. (Photos courtesy of Raczak Real Estate Co Inc.)
MLS # 191763 – Tamarack Condominiums, Snowmass Village, 135 Carriage Way 16, Snowmass Village; Sold Price: $2.25M/$1,811 sq ft Furn. More details below photos.
MLS # 191763 – Tamarack Condos, Snowmass Village, 135 Carriage Way 16, Snowmass Village; Sold Price: $2.25M/$1,811 sq ft Furn. Ask Price: $2.35M (Original Price: $2.35M and on the market since 02/21/2026). This is a 1969 built/2005 remodeled, 3 bedroom 3 bath, 1,242 sq ft condo. Tim’s comments: Two level townhome condo with direct ski-in/ski-out access in central Snowmass Village. Features two upper-level king suites, main-level guest room, modern kitchen, gas fireplace, private deck, and in-unit laundry. No rental or usage restrictions; includes access to pool, hot tub, and on-site parking. 2025 Taxes: $5,959; HOA Dues: $36,048. Under Contract Date: 02/25/2026; Sold Date: 04/09/2026. (Photos courtesy of Aspen Snowmass Sotheby’s International Realty-Snowmass Village)
MLS # 192370 – Gateway To Snowmass, Old Snowmass, 1591 Gateway Road, Snowmass; Sold Price: $1.925M/$858 sq ft Partially Furn. More details below photos.
MLS # 192370 – Gateway To Snowmass, Old Snowmass, 1591 Gateway Road, Snowmass; Sold Price: $1.925M/$858 sq ft Partially Furn. Ask Price: $2.2M (Original Price: $2.2M and on the market since 02/24/2026). This is a 1982 built/2024 remodeled, 3 bedroom 3 bath, 2,243 sq ft single-family home on a 47,916 sq ft lot, or 1.1 acres. Tim’s comments: Secluded property with panoramic views of Sopris, Snowmass, and surrounding peaks. Features outdoor deck, hot tub, koi pond with waterfall, and landscaped natural setting. Recently updated with new kitchen, flooring, paint, and systems. Originally a retreat setting, offering a quiet, nature-focused environment. 2025 Taxes: $11,451. Under Contract Date: 03/15/2026; Sold Date: 04/10/2026. (Photos are from pre-remodeled 09/15/21 listing, courtesy of Aspen Snowmass Sotheby’s International Realty – Hyman Mall)
Snowmass Base Village (BV) New Built Condominium Development Sales
NEW BUILT (2018-2026) SMBV CONDO ACTIVITY AND AVG. PRICES FOR
STRATOS SNOWMASS, AURA SNOWMASS, CIRQUE X VICEROY
Contact broker Tim Estin 970-309-6163 for sales information.
STRATOS SNOWMASS – 89 TOTAL UNITS: SALES OFFERING STARTED LATE JAN 2025
This is the final Base Village slopeside condominium development project. The units will be the newest and the last to be built in the Base Village. Sales opened at the end of Jan 2025. Scheduled for completion and closings in late 2027.
STATS:
As of 04/13/26, out of (89) units total, (75) are pending/under contract (76% of the project), (14) units remain available for sale.
Average Ask Prices & Ask Price/sf
STATS: (Active)
-4 Bdrm; Avg ask price: $9,021,429/$4,434 sf = (7) unit at avg 2,018 sf
-2 Bdrm; Avg ask price: $3,778,571/$3,183 = (7) units at avg 1187 sf
STATS: (Pending)
-6 Bdrms: $30,000,000/$6,002 sf = (1) unit at avg 4998 sf
-5 Bdrms: $13,000,000/$4,555 sf = (2) unit at avg 2816 sf
-4 Bdrm “Sky Cabins”/Penthouses = (3) units under contract (of 6 total)
Avg: $16,166,667/$6,088 sf; Price range: $15-17.5M at avg size of 2653 sf

-4 Bdrms: $8,977,778/$4,161 sf = (9) units at avg 2176 sf
-3 Bdrms $5,737,500/ $3,345 sf = (17) units at avg 1705 sf
-2 Bdrms: $3,657,674/$2,878 sf = (44) units at avg 1272 sf
Aura Snowmass Closings
The Aura Snowmass condominium development project has been under construction for the past two years with a total of 21 slopeside condo residences. Following issuance of certificate of occupancies (CO), here are the Aura Snowmass closings that have ocurred through Feb 7, 2025.
AURA SNOWMASS CONDOMINIUMS (BUILT 2024)
STATS: (Active)
As of 04/13/26, (1) is active.
-4 Bdrm; Avg ask price: $15,000,000/$5978 sf = (1) unit at avg 2,509 sf
AVERAGE STATS: (Closed)
As of 04/13/26, (1) are closed.
-4 Bdrm; Avg sold price: $14,180,000/$5,649 sf; Avg ask price: $14,680,000/$5,849 sf
= (1) units at avg 2510 sf
Aura Snowmass Closings YTD (thru 02/07/25):
187372
• Unit 304, 4 bdrm/4ba, 2,510 sq ft, sold price $ 14.18M/ $5,649 square ft, furn, sold date 05/19/2025, ski-in, ski-out access
186143
• Unit 401, 5 bdrm/5ba, 2,984 sq ft, sold price $ 13.4M/ $4.490 square ft, furn, sold date 02/07/2025, ski-in, ski-out access
178886
• Unit 402, 4 bdrm/4ba, 2,509 sq ft, sold price $ 8.475M/ $3,377 square ft, unfurn, sold date 11/27/2024
176004
• Unit 202, 4 bdrm/4ba, 2,511 sq ft, sold price $7.95M/ $3,166 square ft, unfurn, sold date 11/26/2024
176010
• Unit 401, 5 bdrm/5ba, 2,984 sq ft, sold price $ 10.195M/ $3,416 square ft, unfurn, sold date 11/19/2024
176646
• Unit 504, 4 bdrm/4ba, 2,510 sq ft, sold price $9.895M/ $9,895 square ft, unfurn, sold date 11/21/2024, vaulted ceilings
186039
• Unit 501, 5 bdrm/4ba, 2,984 sq ft, sold price $15M/ $5,026 square ft, unfurn, sold date 11/08/2024
176005
• Unit 503, 4 bdrm/4ba, 2,510 sq ft, sold price $10.985M/ $4,376 square ft, unfurn, sold date 11/07/2024, vaulted ceilings
178527
• Unit 502, 4 bdrm/3ba, 2,509 sq ft, sold price $10M/ $3,985 square ft, unfurn, sold date 11/05/2024, vaulted ceilings
178887
• Unit 405, 5 bdrm/4ba, 2,796 sq ft, sold price $9.95M/ $3,558 square ft, unfurn, sold date 11/04/2024
176003
• Unit 201, 5 bdrm/5ba, 2,984 sq ft, sold price $9.965M/ $3,339 square ft, unfurn, sold date 10/28/2024
176006
• Unit 404, 4 bdrm/4ba, 2,510 sq ft, sold price $8.775M/ $3.496 square ft, unfurn, sold date 10/28/2024
178609
• Unit 403, 4 bdrm/3ba, 2,510 sq ft, sold price $8.45M/ $3,366 square ft, unfurn, sold date 10/31/2024
178503
• Unit 204, 4 bdrm/4ba, 2,510 sq ft, sold price $8.05M/ $3,207 square ft, unfurn, sold date 10/30/2024
176008
• Unit 301, 5 bdrm/5ba, 2,984 sq ft, sold price $10.45M/ $3,502 square ft, unfurn, sold date 10/25/2024
176007
• Unit 305, 5 bdrm/5ba, 2,796 sq ft, sold price $9.525M/ $3,406 square ft, unfurn, sold date 10/16/2024
176002
• Unit 101, 4 bdrm/4.5ba, 2,870 sq ft, sold price $9.475M/ $3,301 square ft, unfurn, sold date 10/25/2024
178487
• Unit 205, 5 bdrm/5ba, 2,796 sq ft, sold price $9.075M/ $3,245 square ft, unfurn, sold date 10/23/2024
178866
• Unit 203, 4 bdrm/3ba, 2,510 sq ft, sold price $8.45M/ $3,366 square ft, unfurn, sold date 10/24/2024
178878
• Unit 302, 4 bdrm/3ba, 2,509 sq ft, sold price $8.395M/ $3,345 square ft, unfurn, sold date 10/22/2024
178883
• Unit 303, 4 bdrm/3ba, 2,510 sq ft, sold price $8.35M/ $3,326 square ft, unfurn, sold date 10/21/2024
176491
• Unit 304, 4 bdrm/4ba, 2,510 sq ft, sold price $8.05M/ $3,207 square ft, unfurn, sold date 10/24/2024
Cirque x Viceroy Closings – Snowmass Village
The Cirque x Viceroy condominium project offers ski in/ski out slopeside units on Snowmass Mountain in the Snowmass Base Village is Phase II of the The Viceroy. These units were offered for sale in Jan 2023 and went under contract in the past two years. The construction project is finishing up and closings are listed below between late Oct 2024 – Feb 18, 2025.
CIRQUE x VICEROY CONDOMINIUMS (ASSAY HILL PHASE II BUILT 2024*)
STATS: (Closed)
As of 04/13/26, (2) are closed.
-4 Bdrm; Avg sold price: $15,150,000/$6,360 sf; Avg ask price: $16,300,000/$6,842 sf
= (1) units at avg 2,382 sf
-3 Bdrm; Avg sold price: $8,300,000/$4,023 sf; Avg ask price: $8,990,000/$4,358 sf
= (1) units at avg 2,063 sf
STATS: (Active)
As of 04/13/26, (11) are active.
-4 Bdrm; Avg ask price: $12,750,000/$5,343 sf = (1) unit at avg 2,386 sf
-3 Bdrm; Avg ask price: $5,647,000/$3,749 sf = (3) units at avg 1,672 sf
-2 Bdrm; Avg ask price: $5,128,000/$4,335 sf = (7) units at avg 1,240 sf
CIRQUE x VICEROY – PH II Built 2024: Closings YTD (thru 02/18/25)
186836
• Unit 651, 4 bdrm/4ba, 2,382 sq ft, sold price $15.15M/ $6,360 square ft, sold date 08/22/2025, furn, ski in/ski out access
186522
• Unit 561-563, 3 bdrm/3ba, 1,710 sq ft, sold price $4.5M/ $2,631 square ft, sold date 05/23/2025, furn, ski in/ski out access
186779
• Unit 426, 1 ba, 388 sq ft, sold price $825,000/ $2,126 square ft, sold date 04/18/2025, furn, ski in/ski out access
183263
• Unit 439/441, 3 bdrm/3ba, 1,465 sq ft, sold price $ 4.255M/ $2,904 square ft, sold date 03/17/2025, furn, ski in/ski out access
186516
• Unit 813/817/819, 3 bdrm/4ba, 2,150 sq ft, sold price $ 5.09M/ $2,367 square ft, sold date 03/14/2025, furn, ski in/ski out access
186646
• Unit 706, 1 bdrm/1ba, 550 sq ft, sold price $ 1.35M/ $2,454 square ft, sold date 02/28/2025, furn, ski in/ski out access
184905
• Unit 334, 1 bdrm/2ba, 1,027 sq ft, sold price $ 1.75M/ $1,703 square ft, sold date 02/18/2025, furn, ski in/ski out access
186530
• Unit 552-554, 3 bdrm/3ba, 2,063 sq ft, sold price $8.3M/ $4,023 square ft, sold date 01/31/2025, furn, ski in/ski out access
186857
• Unit 438, 1 bdrm/1ba, 577 sq ft, sold price $1.8M/ $3,119 square ft, sold date 01/31/2025
182037
• Unit 532, 2 bdrm/2ba, 1,047 sq ft, sold price $2.45M/ $2,340 square ft, sold date 01/17/2025, furn, ski in/ski out access
185951
• Unit 553+555, 3 bdrm/3ba, 1,634 sq ft, sold price $5.69M/ $3,482 square ft, sold date 01/02/2025, furn, direct ski in/ski out access
186497
• Unit 551, 2 bdrm/2ba, 1,250 sq ft, sold price $6.15M/ $4,920 square ft, sold date 12/20/2024, furn, ski in/ski out access
184018
• Unit 721/723, 2 bdrm/2ba, 964 sq ft, sold price $1.955M/ $2,028 square ft, sold date 12/06/2024, furn, ski in/ski out access
181961
• Unit 721, 2 bdrm/2ba, 964 sq ft, sold price $1.955M/ $2,028 square ft, sold date 12/06/2024, furn, ski in/ski out access
177672
• Unit 551, 2 bdrm/2ba, 1,250 sq ft, sold price $4,139,375/ $3,311 square ft, sold date 11/18/2024, furn, direct ski in/ski out access
177836
• Unit 451, 2 bdrm/2ba, 1,250 sq ft, sold price $3.895M/ $3,116 square ft, sold date 11/22/2024, furn, direct ski in/ski out access
177839
• Unit 556-558, 3 bdrm/3ba, 1,711 sq ft, sold price $3,467,500/ $2,026 square ft, sold date 11/19/2024, furn, direct ski in/ski out access
177675
• Unit 356-358, 3 bdrm/3ba, 1,711 sq ft, sold price $3.23M/ $1,887 square ft, sold date 11/22/2024, furn, direct ski in/ski out access
177819
• Unit 357-359, 2 bdrm/2ba, 1,274 sq ft, sold price $1.274M/ $1,864 square ft, sold date 11/22/2024, furn, direct ski in/ski out access
177822
• Unit 461-463, 3 bdrm/3ba, 1,710 sq ft, sold price $3.99M/ $2,333 square ft, sold date 11/14/2024, furn, direct ski in/ski out access
177838
• Unit 253-255, 3 bdrm/3ba, 1,634 sq ft, sold price $3.705M/ $2,267 square ft, sold date 11/12/2024, furn, direct ski in/ski out access
177831
• Unit 460-462, 2 bdrm/2ba, 1,274 sq ft, sold price $2,707,500/ $2,125 square ft, sold date 11/14/2024, furn, direct ski in/ski out access
177833
• Unit 264, 2 bdrm/2ba, 1,248 sq ft, sold price $2.47M/ $1,979 square ft, sold date 11/13/2024, furn, direct ski in/ski out access
183991
• Unit 734, 1 bdrm/2ba, 1,007 sq ft, sold price $1.7M/ $1,688 square ft, sold date 11/08/2024, furn, mountain views
177844
• Unit 663, 3 bdrm/3ba, 1,716 sq ft, sold price $5.89M/ $3,432 square ft, sold date 11/04/2024, furn, direct ski in/ski out access
177812
• Unit 252-254, 3 bdrm/3ba, 2,063 sq ft, sold price $4,902,500/ $2,376 square ft, sold date 10/24/2024, furn, direct ski in/ski out access
177809
• Unit 265-267, 3 bdrm/3ba, 1,680 sq ft, sold price $4.085M/ $2,431 square ft, sold date 11/08/2024, furn, direct ski in/ski out access
177806
• Unit 353-355, 3 bdrm/3ba, 1,634 sq ft, sold price $3.99M/ $2,441 square ft, sold date 11/05/2024, furn, direct ski in/ski out access
177671
• Unit 654, 2 bdrm/2ba, 1,189 sq ft, sold price $3.9M/ $3,280 square ft, sold date 11/04/2024, furn, direct ski in/ski out access
177829
• Unit 256-258, 3 bdrm/3ba, 1,711 sq ft, sold price $3,087,500/ $1,804 square ft, sold date 11/08/2024, furn, direct ski in/ski out access
177830
• Unit 152, 2 bdrm/2ba, 1,255 sq ft, sold price $2,992,500/ $2,384 square ft, sold date 11/09/2024, furn, direct ski in/ski out access
177832
• Unit 557-559, 2 bdrm/2ba, 1,274 sq ft, sold price $2.66M/ $2,087 square ft, sold date 11/05/2024, furn, direct ski in/ski out access
177674
• Unit 651, 4 bdrm/4ba, 2,382 sq ft, sold price $11.75M/ $4,932 square ft, sold date 10/28/2024, furn, direct ski in/ski out access
177811
• Unit 664, 4 bdrm/4ba, 2,386 sq ft, sold price $10M/ $4,191 square ft, sold date 10/28/2024, furn, vaulted ceilings
177827
• Unit 658, 3 bdrm/3ba, 1,720 sq ft, sold price $6.25M/ $3,633 square ft, sold date 10/31/2024, furn, direct ski in/ski out access, vaulted ceilings
177808
• Unit 653, 3 bdrm/3ba, 1,642 sq ft, sold price $6.08M/ $3,702 square ft, sold date 10/28/2024, furn, direct ski in/ski out access
177820
• Unit 659, 3 bdrm/3ba, 1,716 sq ft, sold price $6.05M/$3,525 square ft, sold date 10/31/2024, furn, direct access to Snowmass Mountain, vaulted ceilings
177670
• Unit 552-554, 3 bdrm/3ba, 2,063 sq ft, sold price $5.605M/$2,716 square ft, sold date 10/28/2024, furn, direct ski in/ski out access
177807
• Unit 553-555, 3 bdrm/3ba, 1,634 sq ft, sold price $4.465M/ $2,732 square ft, sold date 10/30/2024, furn, direct ski in/ski out access
177810
• Unit 565-567, 3 bdrm/3ba, 1,680 sq ft, sold price $4.465M/ $2,657 square ft, sold date 11/01/2024, furn, direct ski in/ski out access
177835
• Unit 465-467, 3 bdrm/3ba, 1,680 sq ft, sold price $4.275M/ $2,544 square ft, sold date 11/01/2024, furn, direct ski in/ski out access
177814
• Unit 365-367, 3 bdrm/3ba, 1,680 sq ft, sold price $3.885M/ $2,312 square ft, sold date 10/31/2024, furn, direct ski in/ski out access
177815
• Unit 351, 2 bdrm/2ba, 1,250 sq ft, sold price $3,561,250/ $2,849 square ft, sold date 10/30/2024, furn, direct ski in/ski out access
177840
• Unit 564, 2 bdrm/2ba, 1,248 sq ft, sold price $3.325M/ $2,664 square ft, sold date 10/29/2024, furn, direct ski in/ski out access
177816
• Unit 660-662, 2 bdrm/2ba, 1,274 sq ft, sold price $3.325/$2,609 square ft, sold date 11/01/2024, furn, direct ski in/ski out access
177841
• Unit 151, 2 bdrm/2ba, 1,274 sq ft, sold price $3,052,500/$2,396 square ft, sold date 10/30/2024, furn, direct ski in/ski out access
177825
• Unit 560-562, 2 bdrm/2ba, 1,274 sq ft, sold price $2,802,500/ $2,199 square ft, sold date 10/29/2024, furn, direct ski in/ski out access
177843
• Unit 360-362, 2 bdrm/2ba, 1,274 sq ft, sold price $2,517,500/ $1,976 square ft, sold date 10/29/2024, furn, direct ski in/ski out access
177818
• Unit 260-262, 2 bdrm/2ba, 1,274 sq ft, sold price $2,358,750/ $1,851 square ft, sold date 11/01/2024, furn, direct ski in/ski out access
182308
• Unit 430, 1 bdrm/1ba, 572 sq ft, sold price $1.5M/ $2,622 square ft, sold date 10/30/2024, furn, direct ski access, slope side and valley views
177826
• Unit 452-454, 3 bdrm/3ba, 2,063 sq ft, sold price $5.415M/ $2,624 square ft, sold date 10/25/2024, furn, direct ski in/ski out access
177837
• Unit 261-263 3 bdrm/3ba, 1,710 sq ft, sold price $3.8M/ $2,222 square ft, sold date 10/24/2024, furn, direct ski in/ski out access
177828
• Unit 361-363, 3 bdrm/3ba, 1,710 sq ft, sold price $3.705M/ $2,166 square ft, sold date 10/23/2024, furn, direct ski in/ski out access
177823
• Unit 251, 2 bdrm/2ba, 1,250 sq ft, sold price $3.325M/ $2,660 square ft, sold date 10/25/2024, furn, direct ski in/ski out access
177669
• Unit 464, 2 bdrm/2ba, 1,248 sq ft, sold price $3,087,500/$2,473 square ft, sold date 10/25/2024, furn, direct ski in/ski out access
177824
• Unit 364, 2 bdrm/2ba, 1,248 sq ft, sold price $2.945M/$2,359 square ft, sold date 10/22/2024, furn, direct ski in/ski out access
177673
• Unit 257-259, 2 bdrm/2ba, 1,274 sq ft, sold price $2,312,500/ $1,815 square ft, sold date 10/24/2024, furn, direct ski in/ski out access
183763
• Unit 438, 1 bdrm/1ba, 577 sq ft, sold price $1.1M/ $1,906 square ft, sold date 10/25/2024, furn, higher ceilings, ski-in-ski-out access, private terrace
VICEROY CONDOMINIUMS (ASSAY HILL PHASE I BUILT 2010*)
STATS: (Closed)
As of 04/13/26, (8) have closed since Jan 1, 2025.
-4 Bdrm; Avg sold price: $5,750,000/$2,547 sf; Avg ask price: $5,950,000/$2,636 sf
= (1) units at avg 2,257 sf
-3 Bdrm; Avg sold price: $4,672,500/$2,636 sf; Avg ask price: $5,062,500/$2,871 sf
= (2) units at avg 1,808 sf
-2 Bdrm; Avg sold price: $2,450,000/$2,340 sf; Avg ask price: $2,595,000/$2,478 sf
= (1) units at avg 1,047 sf
-1 Bdrm; Avg sold price: $1,633,333/$2,426 sf; Avg ask price: $1,730,000/$2,561 sf
= (3) units at avg 789 sf
-0 Bdrm; Avg sold price: $825,000/$2,126 sf; Avg ask price: $1,000,000/$2,577 sf
= (1) unit at avg 388 sf
____


















































































